Op zoek naar een ruime woning met vijf slaapkamers? Wellicht is Pippeling 46 wel uw nieuwe thuis!
In de kindvriendelijke en recent vernieuwde woonwijk ‘Waterrijk’ ligt deze 6-kamer tussenwoning met maar liefst 139 m² aan woonoppervlakte en een achtertuin op het zuiden.
Een ideale gezinswoning, perfect gelegen in een rustige woonomgeving, op loopafstand van het centrum van Boskoop, basisscholen en speeltuinen. En voor wie graag buiten vertoeft: het Groene Hart, geliefd bij fietsers en wandelaars, ligt om de hoek.
Boskoop biedt niet alleen natuur, maar ligt ook zeer centraal ten opzichte van de grotere steden. Met zowel de auto als het openbaar vervoer zijn er snelle verbindingen naar bijvoorbeeld Rotterdam, Utrecht en Amsterdam.
De woning is gebouwd in 1997 en voorzien van volledige isolatie. In 2012 is de woning flink uitgebreid met een tweede verdieping die via een opbouw is gerealiseerd. Daarnaast zijn alle houten kozijnen vervangen door kunststof kozijnen met HR++ beglazing voor extra comfort en energiebesparing.
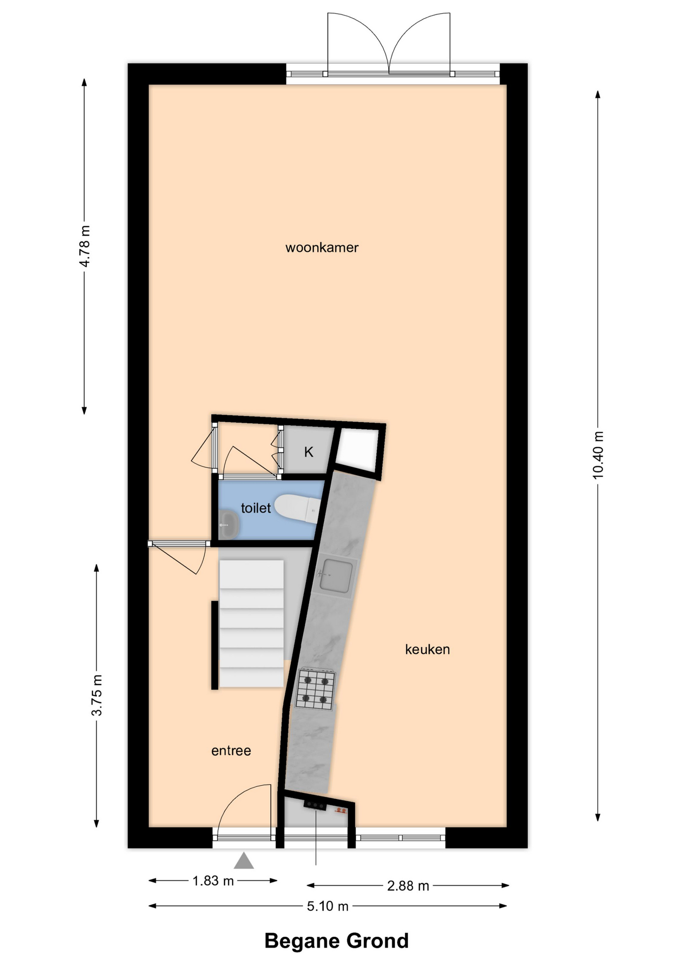
Indeling van de woning:
Begane grond
De hal met trapopgang biedt toegang tot de ruime, tuingerichte woonkamer, die door de openslaande deuren heerlijk licht is. De halfopen eetkeuken aan de voorzijde heeft een speelse, schuine indeling en is uitgerust met diverse inbouwapparatuur: een 5-pits gaskookplaat met wokbrander, afzuigkap, combioven, Quooker, koelkast, vriezer en vaatwasser. Door de grote ramen komt er veel daglicht binnen.
Daarnaast vindt u op de begane grond een aparte toiletruimte met een staand toilet, fonteintje en een handige bergkast voor bijvoorbeeld uw voorraad of stofzuiger.
Eerste verdieping
De ruime overloop biedt toegang tot de drie slaapkamers, de badkamer en de wasruimte. Twee van de slaapkamers aan de achterzijde zijn voorzien van rolluiken. Dankzij de grote raampartijen in elke kamer is het ook hier altijd lekker licht.
De badkamer is uitgerust met een ligbad, douchecabine, wastafel en toilet.
De wasruimte biedt ruimte voor een wasmachine en droger en tevens staat hier de c.v.-ketel (Vaillant uit 2022) opgesteld. Een praktische ruimte waar u ook extra spullen kunt opbergen.
Tweede verdieping
De opbouw uit 2012 zorgt voor een overloop en twee extra slaapkamers waarvan één met frans balkon. Ook deze zijn ruim en praktisch ingedeeld.
Tuin
De achtertuin ligt op het zuiden waardoor hier nagenoeg de hele dag een plek in de zon te vinden is. De stenen berging, voorzien van elektra, staat achterin de tuin en er is een achterom.
Kortom, een fijne gezinswoning die u niet mag missen! We vertellen u graag nog veel meer over de woning tijdens een persoonlijke bezichtiging. Maakt u snel een afspraak?
Deze vrijblijvende objectinformatie is met de meeste zorg samengesteld, maar voor de juistheid daarvan kunnen wij geen aansprakelijkheid aanvaarden. Ook kan aan de vermelde gegevens geen enkel recht worden ontleend. Alle informatie is enkel en alleen bedoeld voor de presentatie van het object en niet meer dan een uitnodiging tot het doen van een bod. Eventueel bijgevoegde plattegronden zijn slechts indicatief.
De woning is ingemeten volgens de branchebrede Meetinstructie, welke is gebaseerd op de NEN2580. De Meetinstructie is bedoeld om een meer eenduidige manier van meten toe te passen voor het geven van een indicatie van de gebruiksoppervlakte. De Meetinstructie sluit verschillen in meetuitkomsten niet volledig uit, door bijvoorbeeld interpretatieverschillen, afrondingen of beperkingen bij het uitvoeren van de meting.