Aan de rand van de wijk ‘Waterrijk’ en op loopafstand van het gezellige centrum van Boskoop, vindt u deze royale hoekwoning. Perfect voor een gezin én voor diegenen die op zoek zijn naar werkruimte aan huis.
De goed geïsoleerde woning biedt een ruime woonkamer met open keuken, vijf slaapkamers, een voormalige garage die ideaal is als werk-/praktijkruimte en een zonnige tuin op het zuiden. Parkeren kan op eigen terrein.
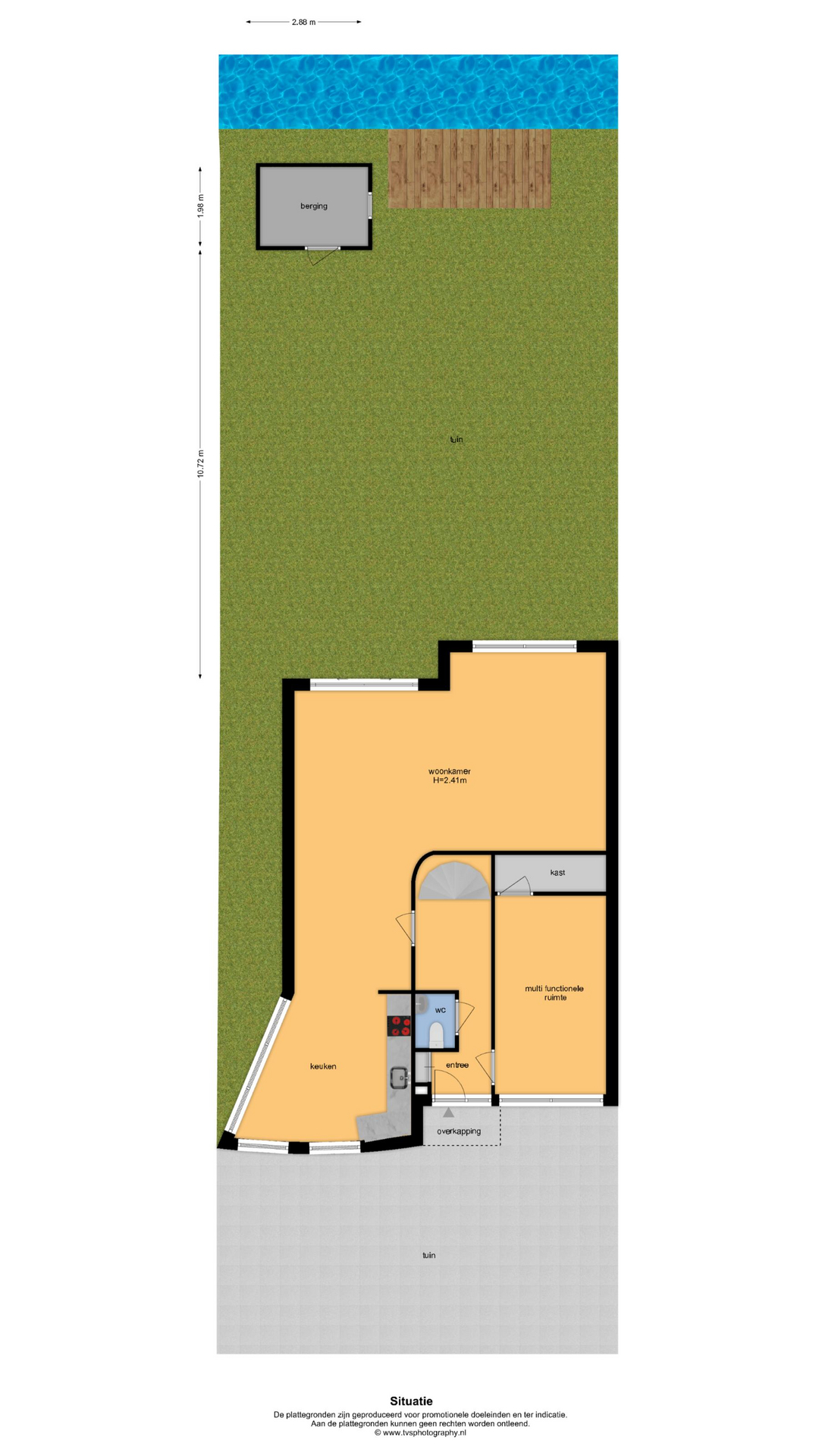
De woning is in 1994 gebouwd, heeft een woonoppervlak van ca. 180 m² en het perceel is 357 m² groot. Het centrum van Boskoop is dichtbij, net als supermarkten, scholen, speeltuinen en openbaar vervoer. De uitvalswegen naar steden als Den Haag, Utrecht, Leiden en Amsterdam zijn snel te bereiken.
Indeling:
Bij binnenkomst treft u de hal met meterkast, toiletruimte met fonteintje, een multifunctionele ruimte en de trap naar de eerste verdieping. Vanuit de hal heeft u toegang tot de ruime woonkamer, die door de grote raampartijen een overvloed aan natuurlijk licht binnenlaat. De keuken, aan de voorzijde van de woning, is in L-vorm opgesteld en voorzien van alle benodigde inbouwapparatuur, zoals een koelkast, vriezer, 4-pits gasfornuis, afzuiging, oven, magnetron en vaatwasser. Door de ruime opzet is een andere indeling makkelijk te realiseren. Het zijraam zorgt voor extra licht en uitzicht op de straat.
Via de schuifpui aan de achterzijde komt u in de zonnige tuin, waar u kunt genieten van het waterleven. Achterin de tuin staat een praktische houten berging voor het opbergen van tuingereedschap.
Eerste verdieping:
Op de eerste verdieping bevinden zich drie ruime slaapkamers, waarvan één met een inloopkast en één met een vaste kast met schuifdeuren. Vanuit de grote slaapkamer aan de zuidzijde heeft u toegang tot het dakterras. De badkamer is uitgerust met een ligbad, twee wastafels en een toilet, en biedt tevens ruimte voor de wasmachine.
Tweede verdieping:
De tweede verdieping biedt nog eens twee ruime slaapkamers, waarvan er één extra opbergruimte heeft. In de technische ruimte bevinden zich de cv-ketel en de mechanische ventilatiebox.
Op zoek naar een ruime woning met de mogelijkheid om werk en privé te combineren, én met een royale tuin? Dan past deze woning perfect bij u! Maak snel een afspraak voor een bezichtiging, wij laten de woning graag aan u zien.
Deze vrijblijvende objectinformatie is met de meeste zorg samengesteld, maar voor de juistheid daarvan kunnen wij geen aansprakelijkheid aanvaarden. Ook kan aan de vermelde gegevens geen enkel recht worden ontleend. Alle informatie is enkel en alleen bedoeld voor de presentatie van het object en niet meer dan een uitnodiging tot het doen van een bod. Eventueel bijgevoegde plattegronden zijn slechts indicatief.
De woning is ingemeten volgens de branchebrede Meetinstructie, welke is gebaseerd op de NEN2580. De Meetinstructie is bedoeld om een meer eenduidige manier van meten toe te passen voor het geven van een indicatie van de gebruiksoppervlakte. De Meetinstructie sluit verschillen in meetuitkomsten niet volledig uit, door bijvoorbeeld interpretatieverschillen, afrondingen of beperkingen bij het uitvoeren van de meting.