Skip to main content
Verkocht€ 420.000 k.k.
Verkocht
Prins Bernhardstraat 1 D, Koudekerk aan den Rijn
  • Type woning: Eindwoning
  • Bouwjaar: 1987
  • Aantal kamers: 4
  • Aantal slaapkamers: 3
  • Buitenruimte: Achtertuin op het zuiden
  • 148 m2Perceeloppervlakte
  • 92 m2Woonoppervlakte
  • 296 m3Inhoud
Op zoek naar een goed onderhouden eindwoning met ruime achtertuin op het zuiden? Lees dan snel verder!

Deze eindwoning is gebouwd in 1987, heeft een woonoppervlakte van 92 m² en een perceeloppervlakte van 148 m².
De woning is gelegen in een rustige en kindvriendelijk woonwijk in Koudekerk aan den Rijn nabij diverse uitvalswegen richting de grote steden en op korte afstand van winkels, scholen en sportgelegenheden.
Midden in het Groene Hart waar u heerlijk kunt fietsen en wandelen.

De indeling is als volgt:
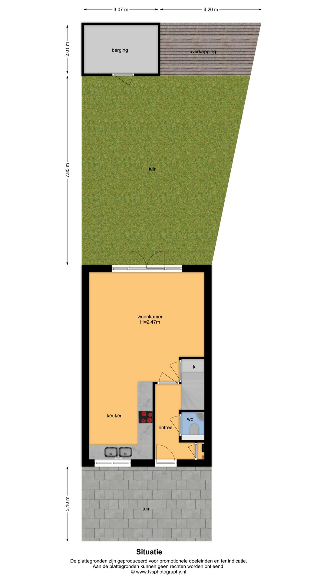
Entree via de voortuin in de hal met vernieuwde meterkast, modern toilet met fonteintje en toegang tot de woonkamer en eerste verdieping.
De tuingerichte woonkamer is ruim en door grote raampartijen is er veel lichtinval. De gehele begane grond is voorzien van vloerverwarming met een plavuizen vloer. De keuken aan de voorzijde van de woning is in L-vorm opgesteld en voorzien van een vaatwasser, combi-oven, koel-vriescombinatie, afzuigkap en elektrische kookplaat.
Door de openslaande deuren in de woonkamer is er toegang tot de ruime en zonnige achtertuin gelegen op het zuiden met berging en achterom. De in 2020 geplaatste overkapping is een heerlijke plek om te genieten van de lange zomeravonden.

Eerste verdieping:
Overloop met toegang tot de twee slaapkamers, badkamer en trapopgang naar de tweede verdieping. De slaapkamer aan de achterzijde is in 2023 vergroot met een kunststof dakkapel, daardoor is deze slaapkamer extra ruim. De vloer is afgewerkt met laminaat, de wanden zijn behangen en er zijn elektrische rolluiken geplaatst. De tweede slaapkamer bevindt zich aan de voorzijde van de woning, een ideale werkruimte of extra slaapkamer.
De badkamer is volledig betegeld en ingericht met een tweede toilet, douchecabine, radiator en wastafelmeubel.

Tweede verdieping:
Overloop met opstelling van de CV-ketel en was-/drogeraansluitingen. Verder is er achter de knieschotten voldoende bergruimte.
De slaapkamer is voorzien van een groot dakraam. Door middel van het plaatsen van een dakkapel kan hier eenvoudig nog een extra slaapkamer gerealiseerd worden.

Nieuwsgierig geworden? Plan dan snel een bezichtiging in, wij laten u deze woning graag zien!

Deze vrijblijvende objectinformatie is met de meeste zorg samengesteld, maar voor de juistheid daarvan kunnen wij geen aansprakelijkheid aanvaarden. Ook kan aan de vermelde gegevens geen enkel recht worden ontleend. Alle informatie is enkel en alleen bedoeld voor de presentatie van het object en niet meer dan een uitnodiging tot het doen van een bod. Eventueel bijgevoegde plattegronden zijn slechts indicatief.

De woning is ingemeten volgens de branchebrede Meetinstructie, welke is gebaseerd op de NEN2580. De Meetinstructie is bedoeld om een meer eenduidige manier van meten toe te passen voor het geven van een indicatie van de gebruiksoppervlakte. De Meetinstructie sluit verschillen in meetuitkomsten niet volledig uit, door bijvoorbeeld interpretatieverschillen, afrondingen of beperkingen bij het uitvoeren van de meting.
Back to top